Posted on 17.12.25 09:12 America/New_York






Building, Home Services in Saudi Arabia
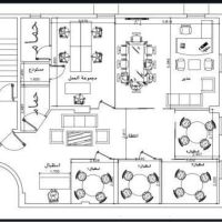
رسام ومصمم هندسي تصميم معماري وأعمال كهرباء وميكانيك تكييف وشبكات صرف وتغذية وشبكات اطفاء حريق على استعداد تام لاستلام مشاريع معمارية كاملة من تصميم شقق وفلل وسوبر ماركات وصيدليات ومستودعات وميكانيك وكهرباء بأسعار مناسبة مع امكانية التعديل على أي تصميم يطلبه العميل
Any issue? Report this ad